Malthouse Barn is a large modern detached stone built barn conversion finished to a high specification in a small courtyard setting of only three other stone built houses. With four bedrooms all en-suite, south facing garden, parking for three cars and EV charger.
N.B all building work on the neighbouring property will be completed by April 2026
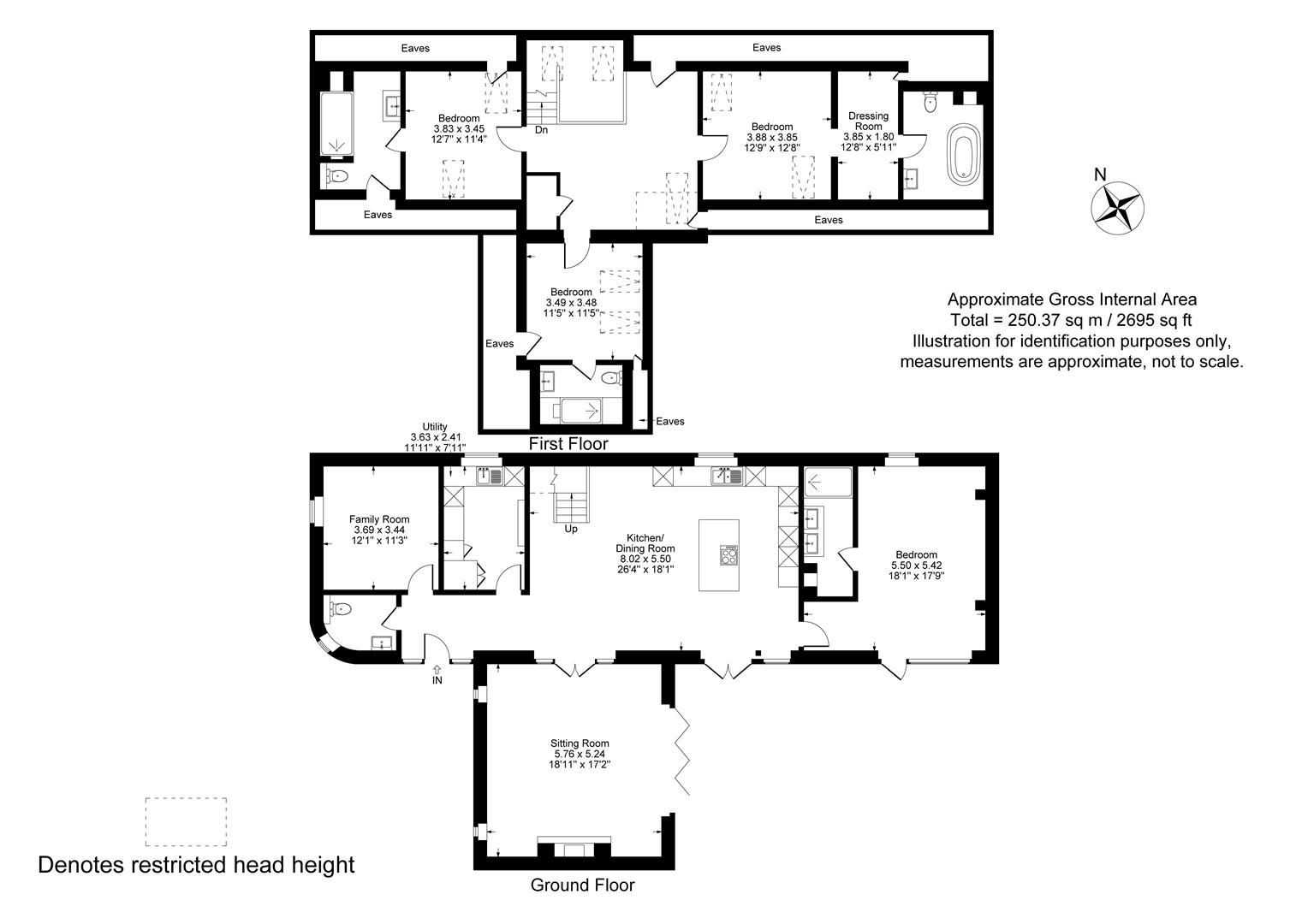
Malthouse Barn is a large modern detached stone built barn conversion finished to a high specification in a small courtyard setting of only three other stone built houses. Located on a quiet side road in the popular west Oxfordshire village of Leafield The ground floor accommodation comprises of a spacious entrance hallway with underfloor heating, and separate cloakroom. The hallway leads on into a large open plan kitchen/dining room area with a central island, the kitchen is fully fitted with Corian work surfaces. Utility area sits off the kitchen.
Oak framed doors lead into a good sized living room with vaulted ceilings and a log burner, with views overlooking the rear garden. There is a second reception room/bedroom four with its own en-suite shower room situated to the rear of the property.
On the first floor there is a spacious landing and space for an office/desk. To the right of the stairs is the master bedroom with dressing room and en-suite bathroom with two further bedrooms all have the added advantage of having their own en-suite bathrooms.
The rear garden has a South East facing aspect and is laid to lawn with mature flower and shrub borders. To the side of the barn there is off road parking for three vehicles and an EV charger.
Leafield village amenities include a Public House, Post Office, Village Hall, Pre- School Group, Primary School, local shop and St Michaels Church. Nearby Witney offers a comprehensive range of shopping and educational facilities and the towns of Burford and Woodstock are within a short drive. Sporting and recreational facilities can be found locally. There are golf clubs at Wychwood Forest, Burford, Witney and Chipping Norton. Fast mainline railway communications are available at nearby Charlbury (London Paddington 67 minutes) and the M40 Motorway is accessible at Oxford-Bicester.
We have not tested equipment, appliances and services to the property. You are advised to consult your legal representative in connection with all matters relating to the contract for sale and legal title of the property.

Fairfax and Company streamlines your conveyancing journey, ensuring smooth, efficient property transactions every step of the way. Trust in our expertise.

We provide expert property market appraisals across the Cotswolds and West Oxfordshire, offering accurate and tailored assessments of your property .