A charming period home in Charlbury, full of character with spacious accommodation, a garden and off-street parking.
Cobwebs is a charming period home full of character, recently redecorated throughout with new carpets and a new conservatory roof, blending traditional features with practical modern updates.
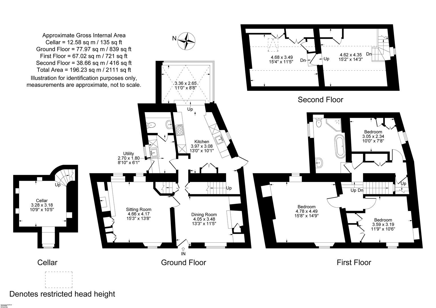
The spacious entrance hall, with its exposed beams, built-in shelving and stone fireplace, sets the tone for the rest of the house. To one side, the large sitting room features an inglenook fireplace with a stone surround, exposed beams, a window seat and dual-aspect windows. The room has a warm and traditional feel, making it an ideal space for evening relaxation.
The kitchen has a stone floor, Belfast sink, integrated fridge-freezer, washing machine and a range cooker with five gas burners, plenty of storage and a side door opens to the driveway. Steps lead up to the conservatory/dining area, where a new roof has recently been fitted. Also on the ground floor is a utility room with a further Belfast sink and washing machine, a cloakroom with WC and wash basin, and a door leading to the patio. From the hall, stone steps descend to a full-height cellar with heating, power, and a stone floor – a useful additional space for storage or hobbies.
Upstairs, the first floor offers three bedrooms, each with exposed beams, period features such as small fireplaces, and built-in storage. The family bathroom includes a bath and a separate shower. Stairs rise again to the second floor, where there are two further rooms well suited as studies or dressing rooms, or another bedroom.
Outside, the rear garden has both lawn and patio areas, providing a pleasant and manageable outdoor space. To the side, there is off-street parking for one car.
Charlbury is an ancient market town well situated in the Oxfordshire Cotswolds. It has become increasingly popular in recent years with those seeking the benefits of a country lifestyle yet requiring easy access to London, Oxford, and other major centres. The town retains a mainline railway station (Oxford approx. 20 minutes, London Paddington approx. 70 minutes) and enjoys the majority of useful amenities, shops, professional and medical services. Charlbury has several pre-school nurseries and an excellent primary school. The entire town is designated as a Conservation Area and is located within the Cotswolds Area of Outstanding Natural Beauty. Oxford is 17 miles and the towns of Chipping Norton and Witney are 7 miles distance by road.

Fairfax and Company streamlines your conveyancing journey, ensuring smooth, efficient property transactions every step of the way. Trust in our expertise.

We provide expert property market appraisals across the Cotswolds and West Oxfordshire, offering accurate and tailored assessments of your property .